Property Details
Property Type
Detached Home
MLS Number
S13038484
Bedrooms
4
Bathrooms
3.5
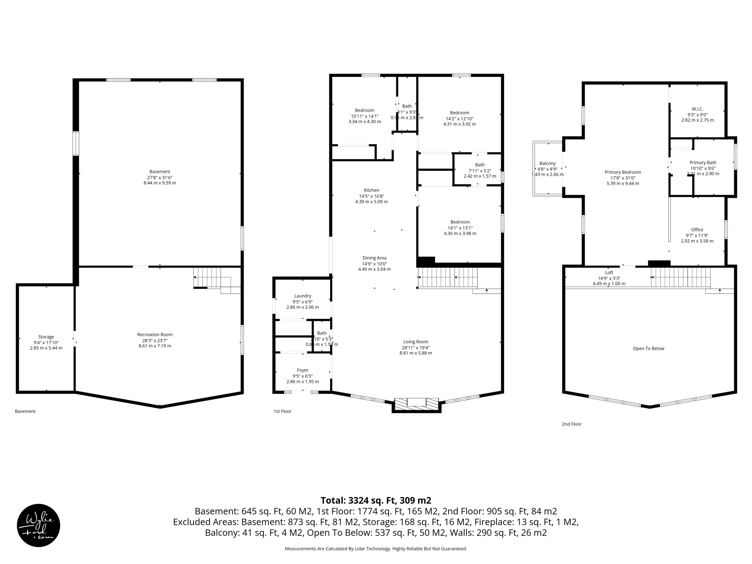
SQFT
3,324 sq ft
Lot Size
90 x 200 ft
Parking
2 Garage, 6 Driveway
Taxes/Year
$6,678/2025
Property Description
Welcome to 53 Broadview Street. This luxury chalet is in the heart of Collingwood, Ontario. It sits on lush, landscaped grounds. The home blends nature with upscale living. It is a true year-round retreat.
A Grand Entrance and Great Room
Wide stone steps lead to the front door. Inside, natural light fills the space. Large windows frame views of the outdoors. They create a calm and airy feel.
The great room is the heart of the home. It features high cathedral ceilings. Rich wood panels add charm. A rustic stone fireplace brings warmth to the room. Hardwood floors ground the space. The open layout is great for relaxing or hosting guests.
Chef’s Kitchen and Main Floor Living
The chef’s kitchen overlooks the great room. It comes with premium stainless steel appliances. You can cook and entertain with ease.
The main floor has three large bedrooms. Each bedroom includes a private ensuite bath. This gives family and guests plenty of privacy.
An open-riser staircase leads upstairs. It has warm wood steps and black iron balusters. This design fits the home’s chalet style perfectly.
Luxurious Primary Suite
Upstairs, you will find the primary suite. It is a private escape. The room has a sloped wooden ceiling with exposed beams. Skylights let in bright sunlight. You also get private deck access. The deck offers stunning views of the wooded backyard.
A home office sits right next to the suite. It adds handy workspace without losing the retreat feel.
Versatile A-Frame Loft
Above the garage is an A-frame loft. It is full of light and rustic charm. This space offers endless options. You can make it a stylish lounge. It could be an art studio or a second office. You might even use it as an in-law suite.
Outdoor Living at Its Best
The outdoor spaces are just as impressive. The grounds are beautifully landscaped. The wooded backyard gives you great privacy.
You can enjoy multiple decks. Relax in the hot tub. Gather around the cozy fire-pit. The yard is perfect for summer BBQs or crisp fall nights.
53 Broadview Street is more than a house. It is a lifestyle. You get rustic elegance and modern comfort. Come see this Collingwood chalet in person.
Take a Tour
Additional Information
Why We Love 53 Broadview Street in Collingwood:
- Soaring Cathedral Ceilings & Stone Fireplace — The grand great room makes an unforgettable first impression, with rich wood paneling and a rustic stone fireplace at its heart.
- Three Bedrooms, Each with a Private Ensuite — Ideal for families and guests, the main floor offers hotel-like privacy and comfort throughout.
- Gourmet Chef’s Kitchen — Stainless steel appliances and an open view of the great room make this kitchen perfect for everyday living and entertaining alike.
- Luxurious Primary Suite with Deck Access — Skylights, exposed beams, and a private deck overlooking the wooded backyard create a true personal retreat.
- Incredible Outdoor Living — Multiple decks, a hot tub, and a fire-pit set against a private wooded yard make every season worth celebrating outdoors.












































































